根伐工事が完了し、均しコンクリート打設の後は地足場を組んでいく。
地足場は基礎配筋をスムーズに進めるうえで必要な仮設だ。
ただ…この計画が意外と難しいのだ…
そんな地足場図面の作り方と注意点を解説してきます。
この記事で網羅できるように書いてますので、最後まで読んで計画してみよう!

地足場計画

地足場は基礎等の躯体に干渉しないように計画していきます。
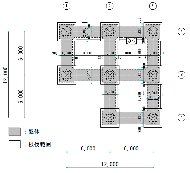
例えば下記の図のような現場があるとします。(基礎梁、基礎廻りは300mm広く掘削しています)

グレーの部分は躯体になるので、地足場の支柱を建てないように計画してみよう!
ただし基礎、基礎梁の大きさによってはやむを得ず支柱を建てるようになってしまいます。
その場合、鉄筋業者とどこなら支柱を建てていいか打ち合わせをしよう!
ちなみに完成図がこちら。(クサビ足場で計画しています)

考え方
計画のコツは敷地の形状にもよりけりですが、十字に計画してあげると通行しやすくなります。
あと鉄筋材の搬入後に荷卸しをするスペースをつくるために、地足場を片側に寄せて計画するとグットです!

この時点でおおよその地足場と荷卸しスペースを決めておきましょう。
決められたら、次は梁幅に注目!
今回の梁幅は1600mmなので、1829mmの足場部材使って基礎梁をまたぐように計画してみましょう。

あと端から計画を始めるより、中心になる場所から振り分けた方がスムーズに計画できます。

そのあとは4400mmのスパンで足場を割付けていきます。
近い寸法で割付けていくと
となるので、割付けてみよう!

基礎梁内に支柱が建つことなく割付できましたね。
左端に基礎梁をまたぐように1829mmの足場を割付けましょう!

右側も同様に割付けて横方向が完了です!
支柱芯で基礎梁に干渉してなければOKです。
多少干渉していても、基礎梁のスターラップに当たらなければ問題ありません。(基礎梁側のかぶり内であればOK!)

縦方向も同様の考えで割付をして、横方向と交わるように帳尻を合わせて完成です!
1スパン毎に昇降設備(ハシゴ)を設けて上り下りできるようにします。
今回は610mmの足場の幅で計画しましたが、現場の規模の大小や鉄筋屋さんと打ち合わせをして幅を決めましょう。
柱廻りのやぐら計画
次は柱を配筋するときに必要なやぐらを計画します。
基礎が2mの場合は足場板をひと回り長い3mで計画しましょう。

柱面から150mm程度に足場板があると作業がしやすいです。(体験談)
また柱主筋は自立できないので、柱受けとして単管パイプを設置します。(赤部)
フープ筋がD13の場合、かぶりの50mmを足すと63mmが柱主筋の位置になります。
あとは基礎、基礎梁に支柱(単管パイプ)が干渉しないようにやぐらを組んであげれば完成です。
地足場から行き来できるように計画するとベストですが、やぐら単体で組んで昇降(ハシゴ)を設置すればOKです。
高さ関係
地足場の床レベルから基礎梁の天端の高さ関係は、鉄筋屋さんに聞いてみよう。
体験談では500~1000mmのスキマがほしいと言われました。(その人による)
1000mmあれば、かがんで作業がしやすいのでオススメです!
断面の画像をつくってみたので、参考にどうぞ!

昇降設備としてはハシゴを使い、安全に昇降できるように安全ブロックをつけましょう。
墜落制止用器具のフックを安全ブロックにつけて昇降します。
架払いのタイミング
地足場、やぐらを組むタイミングは均しコンクリート打設後になります。
払すタイミングは耐圧コンクリート打設後になります。
耐圧コンクリート打設をすると地足場の支柱がコンクリートに潜って取れなくなるので、アシストベースを使ってあげましょう!(岡部製品)

耐圧盤の厚さに合わせて長さを選定してあげます。
耐圧盤よりやや低めにアシストベースを設置して、埋まらないように打設してもらい、上部のカップを撤去して左官補修すればOKです。
まとめ
・十字に計画すると通行しやすい
・荷卸しスペースを考慮して計画する。
・端からではなく、中心から割付を考える。
・やぐらに柱受けをつける。
・昇降はハシゴ、安全ブロックをつけて安全に昇降できるようにする。
・支柱の脚にアシストベースを使うといい。
施工方法などを知りたい、スキルアップしたい方はこちらのまとめ記事もどうぞ。





コメント