これから杭工事をする現場監督必見!
重量のある建物を支えるための要になる工事となるので、失敗は許されない。
画像付きで解説してますので、イメージしやすいと思います。
この記事読んで流れと管理ポイントをおさえて、いざ施工へ。
※この記事は10分ほどで読めますが、理解できるまで読み込もう!

杭工事をする前に確認すること
施工をする前に確認すべきものは、
・柱状図
・杭伏図
・杭リスト
・コンクリート強度
杭工事施工計画報告書

こちらは施工前に杭業者が作成し、元請に提出する書類になります。
構造図をもとに作成してもらっていますが、一通り目を通して間違いがないかを確認しましょう。
鉄筋の本数に相違がないか、杭の長さが構造図通りか等を確認。
これには杭の施工方法、杭鉄筋の詳細、安定液(ベントナイト液)の管理値、重機の詳細等が載っています。
掘削時に掘削孔が崩れないように、掘削側面をコーティングする液
比重、粘性度、pH値が許容範囲内か現地で確認する。
柱状図

現場の土質が分かる資料になります。打撃数(N値)を参考にどこまで掘削するかが決まります。
基本的には礫、砂礫層が支持層となります。
建物を支えるために十分な固さを持つ層のこと。
1本目に打つ杭のこと。監理者が立ち会って施工を管理する。
杭伏図

杭伏図は、杭工事前に杭芯を墨出しをするために必要な図面になります。
墨出し屋さんに依頼して出してもらい、監督が本当に合っているのかを確認します。
やり方検査時に監理者立会いで確認しましょう。
杭リスト

場所打ち杭工法では、鉄筋カゴを入れて施工します。
主筋が何本なのか、径はいくつなのか、拡底・拡頭の形状等は杭ごとに書いてあります。
この図面と杭業者が作成した杭施工計画報告書と照合をしましょう。
コンクリート強度

杭は最後に打設して施工完了になります。
コンクリート強度を間違えないように構造図を確認しておきましょう。
構造図の最初にある「構造設計標準仕様書 4.地業工事」に書いてあります。

その後コンクリート商社からもらう配合計画書の強度で打設をしていきます。
杭工事の流れと施工管理ポイント
それではひとつひとつ流れと施工するときのポイント、撮影箇所をみていこう。
杭芯セット

杭芯セットはケーシングの大きさにもよりますが、杭芯から2m離れた点(2点以上)を取ります。
掘削している最中に2点が交わる位置をスケールで測り、なるべく杭芯に近い位置で掘削します。
(経験上杭芯ぴったりは不可)
写真撮影は上記のように行います。
ケーシング建込・バケット径確認

杭重機に取り付けたバケット(掘削をする円形状の掘削機具)である程度掘削してから、ケーシングと呼ばれる円柱状の鉄管を入れます。
※バケットについては後ほど解説します。
バケット径、ケーシング径を撮影しよう!
掘削した孔内の土の壁面が崩壊することを防止するために掘削部に入れます。
ケーシング建込状況と黒板に書いて撮影をしよう!

ケーシング建込が完了したら、ケーシング天端がGLからいくつ上がっているか、レベルで確認しましょう!
測定結果をもとに所定の掘削深さまで掘削していくので、必ず記録に残しておきましょう。
安定液注入

ケーシングは長くてもせいぜい10mほどなので、ケーシングの下を掘削すると掘削孔が崩壊してしまいますよね。
そうならないように土の壁面をコーティングして、崩壊防止に使用するのが安定液となります。
安定液注入状況と黒板に書いて撮影をしよう!
…とそのまえに安定液試験を行います。
比重、粘性度、pH値が許容値に納まっているか確認するためです。
安定液試験状況も撮影しましょう!
拡底バケット径確認

支持層付近なったら拡底バケットへ変更して掘削していきます。
軸部はドリリングバケットを使用して、掘削しバケット内にたまった土を地上へ上げて搬出します。(拡頭部の形状は異なる場合があります)
杭底を拡底バケットのように台形に掘削します。
拡底バケット径を撮影しよう!
支持層確認・掘削完了
礫、砂礫層の支持層の土質が出てきたら、スコップで支持層の土質を採取して
GL-○○mm支持層確認と土質と一緒に撮影しましょう!
あとは掘り進めて、掘削完了写真を撮影します。
擁壁測定

擁壁測定は、超音波で掘削孔、深さの状況を記録するために行います。
測定が完了すると画像の右上のような用紙が機器から出てきます。
擁壁測定状況を撮影しよう!
こちらは最後お施主様へ渡すものになるので、大事に保管しておきましょう。
一次スライム処理
次の工程としては鉄筋カゴを入れていきますが、その前に孔底にたまった残土をバケットですくい上げていきます。
これは掘削中にバケットから落ちた土を処理し、なるべく不純物がないように施工するためです。
こちらもバケットが上がってきたところを一次スライム処理状況として撮影しよう!
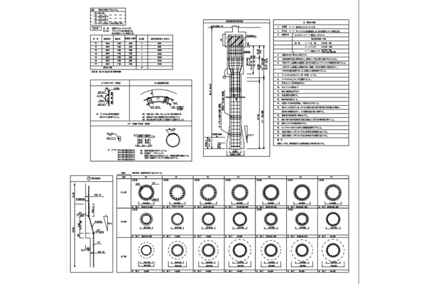
鉄筋カゴ

鉄筋カゴは、本数ごとに撮影していきます。
撮影箇所
・主筋本数(画像参照)
・全長
・フープピッチ
・補強リングピッチ
・スペーサー高さ
・フープ重ね継手長
・主筋、フープロールマーク
・鉄筋カゴと鉄筋カゴの主筋の重ね継手長

トレミー管建込

トレミー管という細い鉄管を孔内へ何本かジョイントをしながら入れていきます。
コンクリートへ汚水、汚泥が入らないようにトレミー管内にコンクリートを入れて打設していきます。
トレミー管建込状況を撮影しよう!
二次スライム処理
コンクリート打設前に再度スライム処理をします。
一次スライム処理の際にはバケットを使用しましたが、二次スライム処理には水中ポンプを使用して吸い上げます。
二次スライム処理状況を撮影しよう!
プランジャー投入

プランジャーと呼ばれる黒いバケツのようなものを入れます。
これをトレミー管内に入れることで、コンクリート打設時に孔底の汚泥、汚水がコンクリートと混ざらないようにすることができます。
プランジャー投入状況で撮影しよう!
コンクリート打設

生コン車から直接コンクリートを流し込みます。
コンクリートがどこまで入っているかを重石をつけた巻尺で管理していきます。
打設が終われば無事1本の杭施工が完了します。
おまけ

鉄筋カゴの最上部の主筋を養生した理由としては、2つあります。
・所定の長さの主筋長さを確保し基礎工事で施工するフーチンへ定着させ、杭と基礎を一体化させるため
杭工事が完了してから2週間後に柱頭部を800~1000mm斫り取り、柱頭にたまった不純物を撤去していきます。(柱頭処理という)
杭頭処理について知りたい方はこの記事をどうぞ!
まとめ
- 杭芯セット
- ケーシング建込・バケット径確認
- 安定液試験・注入
- 拡底バケット径確認
- 支持層確認・掘削完了
- 擁壁測定
- 一次スライム処理
- 鉄筋カゴ
- トレミー管建込
- 二次スライム処理
- プランジャー投入
- コンクリート打設
これで一連の流れが掴めたと思います。
安心して杭工事に臨んでくださいませ!
ご安全に!!
次の施工は山留工事だ!!
施工方法などを知りたい、スキルアップしたい方はこちらのまとめ記事もどうぞ。

最後まで読んで頂きありがとうございます!





コメント