外部足場のシートがピシッと張られている現場を見るとキレイに見えませんか。
シートがよれていたり、隙間があいているとだらしない現場だなぁ~と感じませんか。
現場の印象を変える要因となるのが、足場のシート張りです。
ピシッと張ったスタイリッシュな現場になるように足場シートの拾い方をマスターしよう!

足場シートの寸法と使い方
足場シートの寸法と種類とまとめました。

足場の部材と同じ寸法と幅広サイズというものがあります。
幅広サイズはインチサイズより70mm幅広く、コーナー部分に使っていきます。70mm幅サイズも同様にコーナー部で使います。
どうやって使っていくか図で解説しますね。

支柱のクサビには突出部があるため、コーナー部をインチサイズ同士で張っていくと支柱が丸々見えてきてしまいます。
そうならないように片側を幅広サイズを使い、そのスキマへ70mm幅サイズのシートを使うと支柱が隠れピシッとしたシート張りができるようになるのです。
あとメッシュシートと防炎白シートがありますが、各々の用途も解説しますね!
メッシュシート

メッシュシートは外部へ資材が落下しないように設置するものです。微細な穴があいていて、採光や風を取り入れることができます。
主に道路に面した足場に設置をする。
ただし細かいほこりが外部に出てしまうのが難点。
防炎白シート

防炎白シートはメッシュシート同様に、外部に資材が落下しないように設置するものです。
こちらは微細な穴があいてないので、ほこりも落ちる心配もありません。
こちらは隣接した住宅側へ設置します。
実際に拾ってみよう!
では実際にシートを拾ってみよう!
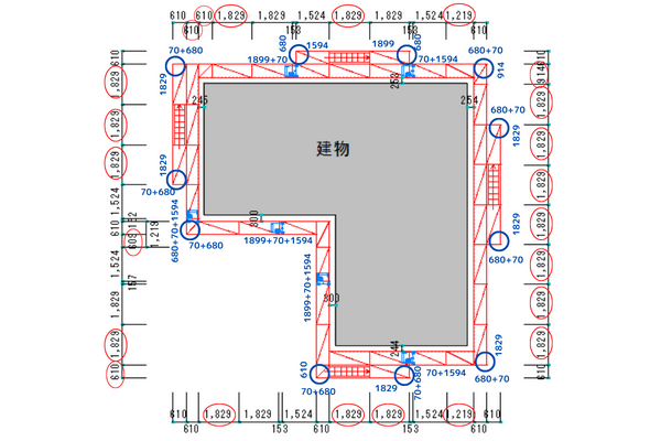
下記の足場モデルを参照に全てメッシュシートで拾っていきます。

実際に拾ったものがこちら。

赤丸部はインチサイズで拾い、幅広サイズ+70mm幅サイズとそのコーナー部を青文字で表記してきます。
画像だと見にくい方向けにPDFデータも入れておきますね。
ん…いや…待てよ! 153mmの部分ってどうやって貼っているの??
153mm幅のシートってなかったよね…お手上げじゃん…
でも大丈夫!
その部分を詳しく見ていこう!

70mm幅が広い幅広サイズを両側使っても140mmにしかならないので、そのスキマに70mm幅サイズを入れます。
では153mmがコーナー部に出てきたら、どうやってシートを張るかも解説していきます。

このように入隅部はインチサイズ同士でシートを張ることができますが、153mmが出てくると
両方幅広サイズを使います。
またスキマができるので、70mm幅サイズを使ってシートを張ります。
割と70mm幅サイズが万能ということが分かったと思います。
あと1829mm幅のところに会社名の入ったシートを付けると宣伝にもなります。
特に道路面のように人通りのいいところに張ると効果絶大です。
まとめ
・153mm部が出てきたら → 両側幅広+70mm幅
最後まで読んで頂きありがとうございます!
ご意見等ございましたら下記に記載願います!

コメント